报名已结束
起拍价 42,000 元
结束时间2021-08-05 11:00:00
993次围观
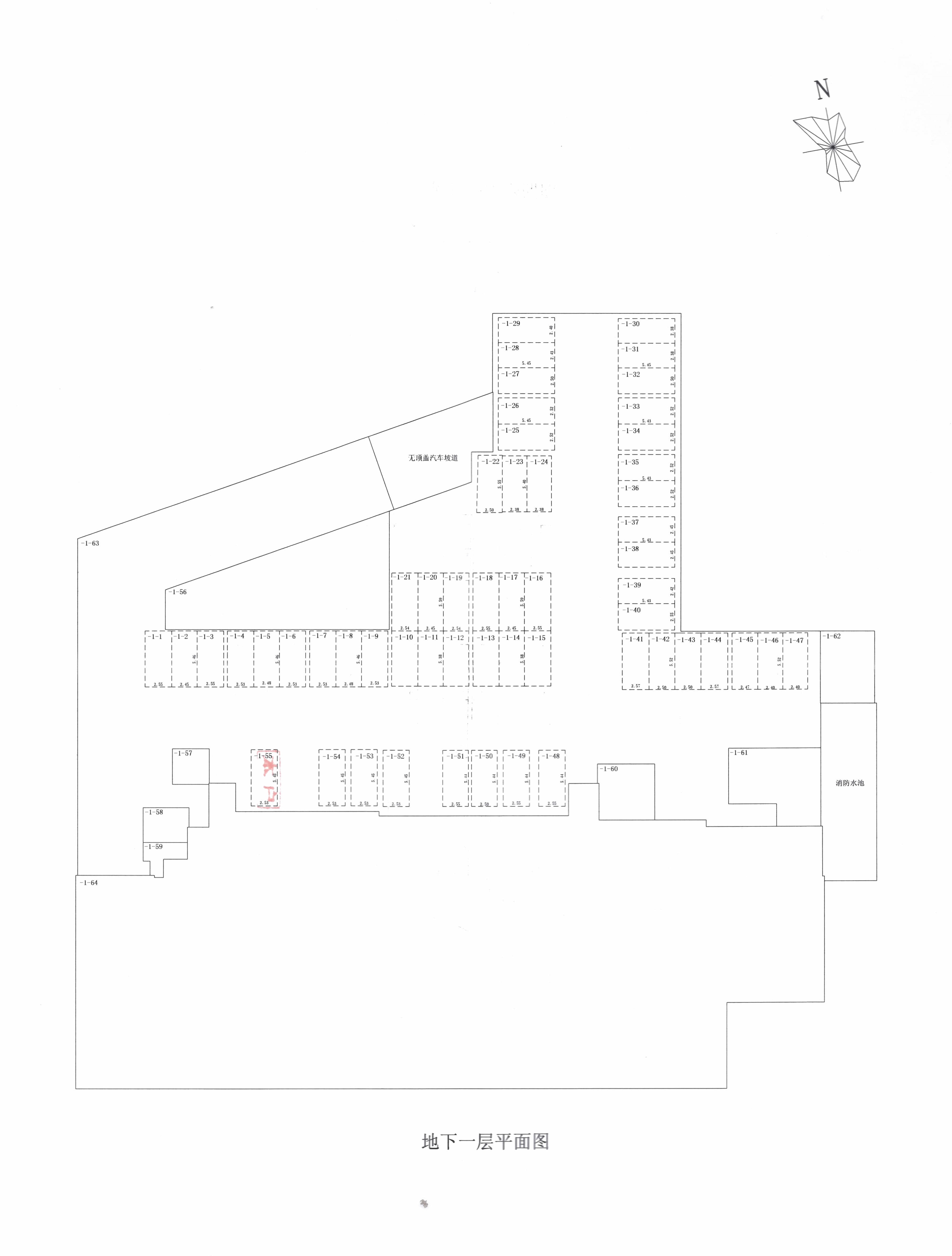
|
标的: |
樟韵人家16号-1-1 |
|
设计(规划)用途: |
汽车库 |
|
建筑面积: |
13.92㎡ |
|
起拍价: |
4.2万元 |
|
注:文字及图片信息仅供参考,一切以现场实际情况为准。 |
|
受委托,本公司将在诚拍网(网址:www.chengpw.com)举行网络在线拍卖会,现将有关事项公告如下:
一、拍卖标的:位于宁波市江北区宝翠茗苑、宝丽茗苑等9处的地下汽车位,车位分布、竞买资格等见下表:

注:拍卖清单里有列明车位坐落位置、建筑面积、用途、权利性质、起拍价等,拍卖清单和竞买须知请在诚拍网自行下载。
二、拍卖时间:第一场拍卖:于2021年7月22日9:00-11:00止(延时除外);第二场拍卖:第一场拍卖未成交的车位,于2021年8月5日9:00-11:00止(延时除外)再行拍卖,第二场可拍卖车位清单将于2021年7月26日前在诚拍网(网址:www.chengpw.com)和宁波公共资源交易网江北区分网(jiangbei.bidding.gov.cn)公示。
三、拍卖方式:有保留价的网络增价拍卖,且拍卖清单里所有拍卖标的竞价同时进行。
四、看样、咨询:竞买人可自行前往实地看样或与本公司联系看样事宜,咨询电话17706600776。
五、报名办法:
1、竞买人本人须在诚拍网上提交有效身份证件完成注册、实名认证,按诚拍网系统提示交纳拍卖保证金1万元/个车位;拍卖保证金应由竞买人(住宅权利人为多人的以报名竞拍代表)银行账户直接转账或汇款,不接受其他任何形式的代付、垫资。
2、竞买人应将住宅产权证或其他相关证明材料原件照片等报名资料在诚拍网上提交或发送至邮箱jinchengpm2003@163.com ;报名资料不完善或不符合要求的,拍卖人有权不予通过资格审核,拍卖保证金(不计息)退回。
六、提交报名资料和保证金截止时间:
1、第一场拍卖:提交报名资料截止时间:2021年7月20日12时;保证金截止时间:2020年7月20日16时;
2、第二场拍卖:提交报名资料截止时间:2021年8月3日12时;保证金截止时间:2021年8月3日16时;
七、过户税费按国家规定的政策由买卖双方各自承担。
八、联系方式:
电话:87715615、87810772、87869880(网络技术服务)
地址:宁波市百丈东路28弄2号嘉汇国贸B座907室
未尽事宜详见拍卖专场资料。
附:《车位拍卖清单》
2021年6月21日
浙江金诚拍卖有限公司
根据《中华人民共和国拍卖法》及相关政策法规,结合本拍卖标的的特点,制定本《竞买须知》,请各位竞买人认真阅读。
一、拍卖标的:位于宁波市江北区宝翠茗苑、宝丽茗苑等9处的地下汽车位,车位分布、竞买资格等见下表:

注:拍卖清单里有列明车位坐落位置、建筑面积、用途、权利性质、起拍价等,拍卖清单和竞买须知请在诚拍网自行下载。
二、拍卖时间:
第一场拍卖:于2021年7月22日9:00-11:00止(延时除外);
第二场拍卖:第一场拍卖未成交的车位,于2021年8月5日9:00-11:00止(延时除外)再行拍卖;
三、网络拍卖平台:诚拍网(网址:www.chengpw.com)。
四、报名办法:
1.竞买人或竞拍代表本人须按照本次《汽车位拍卖公告》的要求,在诚拍网上完成注册、实名认证,按诚拍网系统提示交纳拍卖保证金1万元/个车位;并在规定的时间内提交有效身份证明、住宅产权证或其他相关证明材料原件照片,完成报名,取得竞买资格。
2.参加本次拍卖的竞买人必须为住宅产权人、拍卖保证金应由竞买人(住宅权利人为多人的以报名竞拍代表)银行账户直接转账,不接受其他任何形式的代付、垫资。
3.报名参拍第一场车位拍卖会未成交的竞买人,如需参加第二场拍卖会,需重新提交报名资料和交纳拍卖保证金。
4.简易流程:①实地看样—②用户注册—③实名认证—④参拍报名(提交资料)—⑤资格审核—⑥按提示交纳保证金—⑦选择车位冻结保证金—⑧参加竞买(出价)。
五、竞买办法:
1、网络拍卖会遵循“公开、公平、公正、诚实信用”和价高者得的原则,具体规则详见诚拍网《网络竞价规则》。
2、拍卖方式:本次拍卖为有保留价的网络增价拍卖,且拍卖清单里所有拍卖标的竞价同时进行。至少一人报名且出价不低于保留价,方可成交。
3、网络拍卖会由国家注册拍卖师主持,拍卖时的加价幅度为1000元或1000元的整数倍。
4、本次拍卖,支付一份保证金(1万元)的竞买人,可以参拍对应小区或小区对应区域内拍卖标的中任何一个车位,一旦拍卖成交即不能再行竞拍;如竞买人需参拍多个车位,须同时支付相应保证金。
5、拍卖会当天,竞买人凭账号及密码登录网络拍卖平台及时参加本次竞拍。在9:00-11:00自由竞价时间内(以系统接受竞价的时间为准),竞买人应根据网络拍卖会页面上显示的当前价格进行应价或出价。系统提供固定的加价幅度按钮,竞买人可以选择加价幅度或加价幅度的整数倍进行加价。
6、自由竞价结束时点内无应价出现,电子应价系统准时自动结束;在自由竞价结束时点前2分钟内若还有出价,限时竞价时间(2分钟)启动;在限时竞价时间内,若还有出价,电子应价系统再自动继续延续2分钟,以此类推,直至无应价出现,电子应价系统自动关闭。
7、买受人在网络拍卖平台规定时间内有效出价最高且经拍卖师确认的竞买人即为买受人。
8、买受人须在拍卖成交后5个工作日内凭本人有效身份证明、住宅产权证或其他相关证明材料原件(如房屋所有权人为2人或2人以上联合竞拍一个车位的,所有买受人须到场并提供有效身份证件、联合竞买协议等原件)到本公司签署《拍卖成交确认书》和《电子竞价记录》等相关文件。
9、拍卖成交后,车位产权登记的所有权人必须与本公司签约时买受人的姓名一致。
10、竞买人须在拍卖会前对拍卖标的车位现状进行认真察看,对车位的质量、结构以及可能存在的瑕疵进行周详的了解;未经咨询看样而参拍的,责任自负。
六、过户税费和拍卖佣金
1.拍卖成交后,在办理产权登记、过户时,所产生的过户税费按国家政策规定的要求由买卖双方各自承担(卖出方的增值税、所得税、土地增值税、印花税等相关税费均由原产权单位承担;买受人的契税、印花税、登记费、工本费等由买受人承担)。如遇税费政策调整,按调整后的政策执行。划拨用地需补交土地出让金及相应税费的,则由原产权单位承担。
2.竞买人拍卖成功后,则拍卖人向买受人收取拍卖佣金,拍卖佣金按《浙江省高院关于调整拍卖佣金有关问题的通知》中佣金收取标准的60%计取,即成交价在50万元以下(含50万元)部分按3%(5%*60%)收取(佣金费率,分段递减;佣金总额,分段相加);拍卖佣金从买受人缴付的拍卖保证金中直接扣除。
3.拍卖成交后,买受人必须委托拍卖人代办过户手续的(含网签合同、合同备案、纳税申报及不动产过户),按每套220元向买受人收取代办费。
七、拍卖保证金
1、拍卖未成交的:拍卖会结束后未买受的竞买人,拍卖保证金在拍卖会结束后3个工作日内退还(不计息)。
2、拍卖成交的:拍卖保证金在扣除买受人应承担的拍卖佣金后即转为履约保证金。
八、成交价款的支付和拍品的移交方式
1、拍卖成交后,买受人应在拍卖成交后7个工作日内支付全额的成交款,买受人的履约保证金(即:拍卖保证金扣除拍卖佣金后的余额)可直接抵扣成交款。
2、车位的移交:
(1)买受人付清全部成交价款和拍卖佣金后,由拍卖人开具《房屋移交通知单》,买受人凭《房屋移交通知单》、《拍卖成交确认书》并携带身份证到相应小区的物业公司办理车位移交手续,物业专项维修基金和移交后的物业管理费、公共设施维护费等相关费用均由买受人承担(费用标准以相关单位核定为准)。
(2)在办理不动产交易过户前,按规定需先行办理不动产补证、补交土地出让金等相关手续,完成后方可办理产权交易、过户登记。
3、标的移交前发生的水、电、物业费等费用由原产权单位承担。
4、拍卖成交款支付至指定账户(户名:浙江金诚拍卖有限公司宁波江北分公司,账号:24010122000811754,开户行:宁波银行四明支行)。
九、特别约定和说明
1.拍卖时的起拍价、成交价均不含标的在办理产权过户、实物移交时所产生的一切税、费等。
2.本次拍卖仅按标的之地下车位本身且以展示看样时的实物现状进行拍卖(有特别约定的除外),车位现场地址标示与权证坐落、房号不一致,以权证记载为准。
3.买受人对拍卖标的使用和利用应遵循相关的法律、法规,并不得改变车位的用途。
4.若部分车位宽度比较窄车辆难入库,特别有部分是微型车位,或车位周围有落水管道等公共设施,竞买人应在拍卖前实地看样,并承诺竞买成功后不得擅自改变车位结构。
5.本次拍卖车位因长时间空置,如划线不明、上面有杂物堆放、渗水或墙面剥落、地面不平、起皮等情况,买受人在使用前应做全面检查,并自行负责清理、修理;拍卖成交后,买受人不得以此为由反悔,或要求委托人和拍卖人进行清理、修理和赔偿。
6.竞得车位后,若申请装配电表、充电桩等,买受人应自行负责办理相关手续,所涉相关费用由买受人自行承担。
7.本次拍卖车位的建筑面积均出自不动产登记部门核准的证载面积。成交后在办理过户时,若存在面积上的差异时,不影响本次拍卖成交和成交价格,成交款项也不作退补。
8.拍卖人对标的的介绍仅为方便竞买人了解拍品,若与实际情形有差异的,皆以实际情形为准。对车位能否满足买受人的需求以及是否存在其他瑕疵,拍卖人和委托人对此不作保证。
9.竞买人应对自己的竞买行为负责,一经参拍应价,竞买人一旦参加竞拍的即表示对车位现状及可能存在的瑕疵(缺陷)无异议,并愿意遵守《竞买须知》、诚拍网《网络竞价规则》规定的条款和履行相关义务。
10.若拍卖文件需要修正或补充的,拍卖人可以在拍卖会前通过书面、短信、微信等方式告知竞买人,也可在正式拍卖会前在网站上作补充或说明,竞买人一经参拍应价的,均视为已接受此修正或补充。
十、网络竞价特别声明:
1、竞买人应在拍卖会前认真阅读诚拍网《网络竞价规则》以及本《汽车位竞买须知》,并了解相关内容,不清楚的应在拍卖前向拍卖人咨询了解,不认可或者不了解相关内容的,您可以放弃竞拍。
2、一旦进入诚拍网申请参加本次网络竞价的竞买人,我公司即视为已知晓并接受本《汽车位竞买须知》及附件、诚拍网《用户注册协议》和《网络竞价规则》等公开发布的相关规则的约定,如果竞买人对上述须知、协议、规则理解有误导致的损失,由竞买人自行承担一切法律后果及责任。
3、竞买人应对自己账号(用户名)、密码及网络的安全负责,在网络竞价过程中,所有操作均视为竞买人本人真实意思的表示,即表明愿意接受拍卖标的之现状,并愿意遵守本《汽车位竞买须知》、诚拍网《网络竞价规则》规定的条款和履行相关义务;由此产生的一切后果,由竞买人自行承担。
4、本场拍卖会采用网络在线拍卖方式,参与网络拍卖的竞买人有可能遇到系统故障、设备故障、通讯故障、电力故障、网络故障、系统被人为攻击或病毒攻击及其他不可预知因素所导致的无法正常参与网络同步拍卖(包括出价延迟、中断、数据错误等),拍卖人不承担因以上无法控制或不可预知状况导致竞买人参与竞拍失败的后果。
5、竞买人的网络有效出价以系统所记录的先后顺序确定,系统所记录的信息将是网上竞买人、买受人竞买行为有效的法律依据。
十一、法律责任
1、免责声明:委托人和拍卖人对本次拍卖的汽车位品质、结构,以及可能存在的瑕疵(缺陷),不承担任何瑕疵担保责任,一切以展示看样时的现状为准。
2、买受人有以下违约行为的,则应承担违约责任,即拍卖人有权不予退还买受人的拍卖佣金和履约保证金;有权单方面解除《拍卖成交确认书》,收回标的重新拍卖:
A.拍卖成交后,买受人不与拍卖人签订《拍卖成交确认书》和办理成交确认手续的。
B.买受人不能按时支付拍卖成交价款和拍卖佣金,经催讨依然无法付清的。
C.买受人不按本《竞买须知》规定履行相关义务而造成违约的。
同时按《拍卖法》第39条规定:拍卖标的再行拍卖的,原买受人应当支付第一次拍卖中本人及委托人应当支付的佣金。再行拍卖的价款低于原拍卖价款的,原买受人应当补足差额。
3、竞买人之间恶意串通或有操纵竞价、弄虚作假行为的,拍卖人有权当场取消其竞买资格,并依法由竞买人承担相应的赔偿责任。
十二、在拍卖前,委托人如决定中止、暂缓或终止委托拍卖的,竞买人应当无条件地予以接受,拍卖保证金不计息退还。
十三、如网络拍卖出现技术故障导致无法正常举行,则将暂停拍卖,等网络恢复后另行通知。
十四、本须知的解释权归拍卖人所有,未尽事宜按国家有关法律、法规办理。
附:1、《车位拍卖清单》
2、诚拍网《网络竞价规则》
浙江金诚拍卖有限公司
2021年6月21日
诚拍网网络竞价规则
一、法律依据
本规则根据《中华人民共和国拍卖法》和相关法律法规制定,参加网络竞价的竞买人须仔细阅读本规则及标的对应的《拍卖公告》《竞买须知》及附件等专场资料,并以此对自己在网络竞价中的行为负责。如因未仔细阅读而引发的任何损失或法律责任均由竞买人自行承担。
二、竞买人
参与网络竞价的竞买人须是具有完全民事行为能力的自然人、法人以及其他组织,须符合法律、法规及《拍卖公告》《竞买须知》规定的资格和条件,并具备网络操作的能力。
三、优先购买权
优先购买权是指公民、法人和其他组织在特定的买卖关系中,根据法律的直接规定,在同等条件下优先于其他人购买出卖人财产的权利。
四、竞买须知
是拍卖人针对某一场拍卖会所撰写的关于竞买人报名手续的办理、保证金的缴纳、拍卖成交后的标的结算交割、违约处理、瑕疵声明等相关文件。
五、网站注册及实名认证
1、竞买人/竞买机构需要登录诚拍网-个人中心,点击注册按钮进入用户注册页面,自行确定用户名和登录密码,并回复系统自动发送的手机验证码予以确认,进行注册操作。
2、注册成功后再凭用户名和密码登录诚拍网,进入个人中心→实名认证页面,选择您要认证的账户类型(个人用户或企业用户),提交信息,进入实名认证操作。
六、竞买帐号、密码的使用
1、竞买人应妥善保管自己的帐号、密码,不应将其帐号、密码转让或出借予他人/组织使用。
2、参与网络竞价的竞买人只能对应一个账号(用户名)。
3、凡在诚拍网上以竞买人的帐号(用户名)和密码登陆后进行的操作,均视为竞买人本人的行为,竞买人应当对自己的帐号进行的所有活动和事件负法律责任。
4、如竞买人发现其账号(用户名)遭他人非法使用,应立即通知拍卖人。因黑客行为或用户过失导致账号(用户名)、密码遭他人非法使用,拍卖人不承担任何责任。
七、授权委托办理
如参与竞买人未开设诚拍网账户,可委托代理人(具备完全民事行为能力的自然人)进行,但须在拍卖开始前规定的时间内,委托双方共同携带合法有效的身份证明、委托书等,前往拍卖人指定地点办理委托手续,经确认后方能进行网络拍卖。如委托手续不全或未办理委托手续的,竞买活动认定为代理人的个人行为,由其承担一切法律责任。竞买成功后,买受人(法定代表人、其他组织的负责人)须与代理人一同到拍卖人指定地点办理相关手续。
八、竞买保证金(不计息)
1、缴纳次数:每参加一场拍卖会的竞价,都需要缴纳一次保证金。
2、缴纳金额:每一个标的单独设置保证金金额,在报名时,竞买人根据保证金的提示额以转账方式支付。
3、缴纳方式:竞买人(含优先购买权人)需在公告规定的时间内完成报名缴纳保证金。竞买人已缴纳的保证金将锁定在本场网络拍卖会内,请竞买人确认持卡银行的支付限额以及卡内余额。
注意事项:
1)请各位竞买人在保证金缴纳截止时间前两日支付保证金,以免错过竞价;
2)建议汇款时间:工作日8:30-16:30;不支持在浙商银行各网点缴现或转账(包括手机、网银转账),也不支持微信、支付宝转账。
4、锁定期限:从缴纳成功开始进行锁定,竞价成功及不成功的竞买人保证金都在拍卖结束后按《竞买须知》规定的时间内释放。
5、保证金的退回:网络拍卖结束后,竞价成功者,其拍卖保证金的处理按标的对应《竞买须知》约定为准;竞价失败者,保证金将在《竞买须知》约定时间内(不计息)退回到付款的银行卡里。(注意:请竞买人关注保证金流向,如保证金在规定时间内未退回,请联系拍卖人)
6、保证金不予退还的情况:
1)买受人在网络竞价成功后未在规定时间内支付成交款和交易服务费的;
2)买受人未在约定时间内签订竞价《成交确认书》、《电子竞价记录》等相关文件的;
7、转账汇款情况说明(以人民银行大小额系统时间为准):
|
汇款渠道 |
汇款运行时间 |
汇款金额 |
汇款范围 |
|
大额系统 |
工作日8:30-16:30 |
无金额限制 |
全国 |
|
小额系统 |
7*24小时 |
小于等于5万元 |
全国 |
|
实时清算系统(企业) |
工作日8:30-16:30 |
无金额限制 |
同城 |
九、网络竞价方式
1、采取有保留价(底价)或无保留价(底价)的方式对标的进行网络在线竞价。标的起拍价不等同于保留价(底价),最高出价达不到保留价(底价)则不成交。
2、竞价方式分为网络拍和逐个拍;网络拍即拍卖会中所有拍品同时开始竞价,逐个拍即拍卖会中拍品按顺序逐一竞价。
十、标的物网上展示
1、拍卖人通过标的预展、现场介绍、网站宣传、口头推介等形式在网上发布的图片及其资料仅供参考。竞买人不应仅依赖图片对标的的状况做出判断,应以亲自调查为准。
2、竞买人进入本次网络竞价页面,即表明已完全了解标的之一切现状,同意遵守本《网络竞价规则》、标的相应的《竞买须知》及附件等条款的约定,并愿承担一切法律责任,未查验标的现状参加竞买的责任自负。拍卖人及委托人不承担网络竞价标的的任何瑕疵担保责任。
十一、出价及成交原则
1、出价规则:
1)出价时必须在拍卖人约定的时间才有效,不在约定时间出价均为无效出价。
2)出价只能大于或等于起拍价。
3)点击出价后,系统按照固定的加价幅度出价,也可通过 + 号、- 号按加价幅度的N倍加价(N为>=1的整数)。网页弹出对话框,网上竞买人点击“确认”即认同此出价,不愿意出此价则选择“取消”。
4)出价者在自己出价领先的状态不必等有人出价既可以再次出价。之后的出价可以自己超越自己,即之后可连续出价。
5)优先购买权人参与竞买的,可以与其他竞买人以相同的价格出价,没有更高出价的,拍卖标的由优先购买权人竞得。
6)顺序不同的优先购买权人以相同价格出价的,拍卖标的由顺序在先的优先购买权人竞得。
7)顺序相同的优先购买权人以相同价格出价的,拍卖标的由出价在先的优先购买权人竞得。
2、延时规则:
1)出价延时的概念:出价延时是指,当标的进入到限时竞价时间,如果有竞买人出价竞拍,那么系统将会自动延长到一个限时周期的时间继续倒计时。
2)出价延时的基本规则:在设置了限时竞价时间的标的进入限时竞价时间(以系统接受竞价的时间显示为准),如果有竞买人出价竞拍,那么该次拍卖时间在此次出价时间的基础上自动延长到一个限时竞价时间,循环往复直到没有竞买人出价竞拍时,拍卖结束。
3)出价延时举例说明:
例:假设某件拍品的限时竞价时间为5分钟(300秒),竞价结束时间是8月8日22点整,如果在8月8日21点55分15秒,有竞买人出价,那么系统将竞价结束时间自动延长至8月8日22点00分15秒;如果在22点03分有竞买人出价,那么系统将自动延时到22点08分……以此类推,直到最后5分钟没有新的竞买人出价,那么该标的物的竞价结束。
注意:网络竞价有固定的竞拍周期,不会在长时间无人出价的情况下提前结束。时间以网站服务器响应时间为准。
3、成交规则:遵循公开、公平、公正、诚实信用和价高者得的原则。
1)有保留价:至少1人报名,且有效最高出价大于或等于保留价即可成交。
2)无保留价:至少1人报名,且有效出价的,即可成交。
3)确认成交:网络竞价结束时,竞买人的有效最高出价通过网络拍卖平台系统进行确认后,拍卖成交,该竞买人即为买受人。
十二、拍卖成交确认书的签署
竞价结束后,买受人按标的对应《竞买须知》规定的时间内至拍卖人指定地点签署成交确认书等相关文件,网络买受人拒绝签署成交确认书的,属于买受人违约,并承担违约责任。
十三、受领成交标的
网络买受人向拍卖公司付清拍卖成交价款和拍卖佣金后,应当在规定的时间内领取成交标的,逾期领取成交标的的,承担标的保管费。
十四、拍卖款结算
网络买受人必须按照《竞买须知》及其与拍卖人签署的任何有效约定,在规定的时间内付清拍卖价款和拍卖佣金。如逾期将视为买受人违约,承担违约责任。
十五、其他事项说明
因特殊情况可在竞价开始前或在竞价过程中,竞买人可取消订单(除出价最高者外),重新选择拍品报名参拍。但由于重新报名参拍而错过竞价时间,拍卖人不承担任何责任。
十六、网上竞买风险声明:
1、因注册信息不准确、资料提供不完善、竞买保证金交纳不及时,造成申请人用户名不能被审核通过,从而不能登陆竞价页面,拍卖人不承担任何责任。
2、竞买人的竞买账号和密码一经注册后,因泄露、丢失、遗忘登录密码而产生的一切后果,拍卖人不承担任何责任。
3、因为互联网可能出现不可控的波动问题,参与网络拍卖的竞买人有可能遇到由于无法控制且不可预知的网络、电路、系统、设备等故障、系统被网络黑客人为攻击、电脑病毒恶意攻击及其它不可预知因素所导致的无法正常参与网络拍卖(包括出价延迟、中断、数据错误等)或因竞买人自身终端设备和网络异常等原因导致无法正常竞价的,拍卖人不承担任何责任。如果竞拍过程中出现上述问题,拍卖人有权暂停竞价,并宣布竞价无效。
4、对于因不可抗力或本系统程序不能控制的因素导致服务中断、报价中断或其他缺陷,拍卖人不承担任何责任。
十七、第三方入驻浙江金诚拍卖有限公司的诚拍网平台进行竞价拍卖的,也适用本网络竞价规则。
十八、本规则由浙江金诚拍卖有限公司制定并解释。本公司有权根据法律法规的变更和现实情况进行不定期修订。修订后的版本将会在诚拍网公布,自公布之日起生效。如您不同意相关变更,应当立即停止使用。您继续使用的,即表示您接受经修订的规则。
2021年5月22日实行
浙江金诚拍卖有限公司
| 状态 | 竞拍号 | 价格 | 时间 |
|---|
电话:0574-87869880 87869881 87810772 87715615 传真:0574-87712912
地址:浙江省宁波市百丈东路28弄2号(嘉汇国贸B座)907室 邮编:315041
公司邮箱:jinchengpm@126.com 网址:www.chengpw.com 免责声明
© 2019 浙江金诚拍卖有限公司 版权所有
浙ICP备16033026号 增值电信业务经营许可证 浙B2-20170027 拍卖经营许可证 浙宁3301951100002003